073-7780837
EN
דונסקי משרד אדריכלים ומעצבי פנים

בינה מלאכותית אדריכלית

אדריכלות ובינה מלאכותית (AI) – חזית התכנון החדשה

משרד דונסקי זוהר מוביל את חזית התכנון האדריכלי בישראל באמצעות הטמעה עמוקה של כלי בינה מלאכותית (AI) מתקדמים. עבורנו, ה-AI אינו רק כלי עזר, אלא מנוע אסטרטגי המאפשר למקסם את איכות התכנון, הדיוק והערך הכלכלי של כל פרויקט.

ממשרדים ועד לתכנון עירוני מורכב

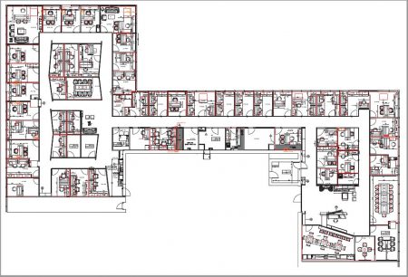
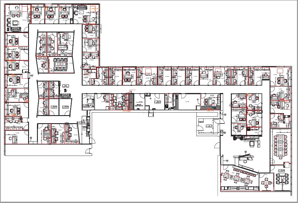
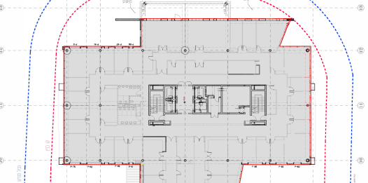
כשותף אסטרטגי ומקצועי בחברת הסטארט-אפ QBIQ AI, המשרד לקח חלק מרכזי בפיתוח מנוע תכנון מוכח ואפקטיבי. בעוד שהמערכת החלה את דרכה באופטימיזציה של תכנון חללי משרדים, המשרד הרחיב והטמיע את יכולותיה לתכנון מבנים מורכבים ורחבי היקף. כיום, אנו מיישמים יכולות אלו בתכנון בנייה רוויה, מתחמי עירוב שימושים, מבני ציבור ומתקני תשתית קריטית וחוות שרתים (Data Centers).

תשתית מחקרית ואקדמית

המחויבות של המשרד לחדשנות טכנולוגית נשענת על עומק אקדמי יוצא דופן. זהבית שפיצר-זוהר, מנכ"לית שותפה במשרד, ערכה במסגרת לימודי התואר השני באדריכלות ותכנון עירוני מחקר פורץ דרך שעסק בפיצוח התכנון העירוני באמצעות כלי בינה מלאכותית. עבודת התזה זכתה להערכה רבה ולהוקרה אקדמית גבוהה, ומהווה כיום את הבסיס המדעי ליישומים הטכנולוגיים הייחודיים שהמשרד מציע ללקוחותיו.

היתרון היזמי: אופטימיזציה בזמן אמת

השילוב בין ניסיון אדריכלי מצטבר לבין עוצמת המחשוב של ה-AI, מאפשר לנו לבחון מגוון רחב של חלופות תכנוניות בזמן אמת. תהליך זה מבטיח ליזמים ולמקבלי החלטות אופטימיזציה פרוגרמטית מלאה, קיצור משמעותי בלוחות הזמנים וביטחון מלא במימוש הפוטנציאל המקסימלי של הנכס

צור איתנו קשר

צור איתנו קשר

DUNSKY ZOHAR ARCHITECTS



    דונסקי אדריכלים ומעצבי פנים